Modern living room with a beige sofa, patterned cushions, and a wooden coffee table. Art prints hang on the wall. A lamp illuminates the space. Balcony with seating is visible through glass doors.

85 Kingfisher Court

Watford, Watford, Hertfordshire

Bedroom

Bathroom

Heart with white background colour
Heart with petrol background colour

For sale

Guide Price £464,950 *Other fees apply

Two bedroom apartment 

This two bedroom apartment has a large private balcony which is accessible from the open plan living/dining room. The second double bedroom is a good size and the apartment benefits from additional storage and utility cupboards.

Property specifications

  • Large private balcony
  • Second double bedroom
  • Shower Room
  • Open plan living/dining room
  • Fully fitted German Beckermann kitchen
  • Utility cupboard with Zanussi washer/dryer
  • Hallway storage
  • Mayfield Club membership
  • Lift access

Please note that a monthly management charge and deferred fees apply to all properties in a Mayfield village. Read more about fees.

Property features

  • 2 Bedroom Apartment

Property dimensions

Metric (m) / Imperial (ft)

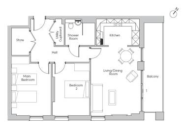
  • Living/Dining Room: 5.16m x 3.89m (16'1" x 12'9")
  • Kitchen: 2.6m x 2.53m (8'9" x 8'4")
  • Main Bedroom: 5.29m x 2.90m (17'4" x 9'6")
  • Bedroom 2: 4.05m x 2.80m (13'4" x 9'2")
  • Balcony (approx): 2.44m x 1.54m (8'0" x 5'1")

General: The measurements in these particulars are approximate and have been provided for guidance purposes only. The internal photographs used in these particulars are reproduced for general information and it cannot be inferred that any item is included in the sale.

Download Key Facts Document

Download Fees Document

Specifications

  • Fully fitted German Beckermann kitchen with soft close units
  • Stainless steel sink inset with single bowl, mixer tap and drainer
  • Integrated cooking appliances including Zanussi multifunction fan oven with grill, four ring ceramic hob and canopy hood
  • Zanussi dishwasher with AirDry technology
  • Fully integrated Zanussi fridge/freezer with low frost technology
  • Duropal laminate work surfaces with upstands
  • Feature glass backsplash to hob area
  • Johnson porcelain tiled flooring
  • Zanussi washer/dryer located in utility cupboard
  • Ideal Standard Tempo sanitaryware, including basin, tap and toilet with soft close seat
  • Fixed glass screen panel to shower area with Bristan multi-function handheld shower with sliding rail
  • Chrome electric heated towel rail
  • Vinyl flooring throughout, including shower
  • Full height Johnson ‘refine’ porcelain tiles to shower area
  • Walk-in shower with level access
  • Illuminated mirrored cabinet with shaver point
  • Cavalier Cosmopolitan carpet in bedrooms, lounge and hallway
  • Horizonal 4-line moulded apartment entrance doors
  • Flush painted internal doors with stainless steel ironmongery
  • Composite windows finished in white internally
  • White walls and ceilings to create clean, contemporary feel
  • Down-lighting in kitchen and shower room
  • Pendant lighting in living areas and bedrooms
  • Crabtree capital white sockets and switches throughout apartment
  • Wiring for TV, DM and satellite signals to living room looped to master bedroom and bedroom two
  • Mechanical fan unit mounted in utility cupboard
  • Telephone points in lounge and all bedrooms
  • Heating provided via heat interface unit and standard radiators with valve at bottom of the radiator
  • Programmable digital roomstat located in lounge
  • External light located on balcony
  • Emergency call system
  • Proximity card that controls access into the building and from communal area into private owner spaces
  • Key access to apartment front doors
  • Smoke detector in living room, bedroom and hallway
  • Heat detector in kitchen
  • Audio door entry with visual from entry panel camera to TV channel in apartment
  • Roof terraces as well as south-facing garden on ground floor
  • Mayfield Watford has been designed by the fabric first approach. This means that the floors, walls and roofs are thermally efficient with improved energy performance
  • On occupation, owners will receive an energy performance certificate (EPC) for their apartment
  • We have installed infrastructure for future electric car charging points

Heron Place
Watford
Hertfordshire
WD18 0LQ

Call us: 01923 882631

Email us: info@mayfieldvillages.co.uk

Office opening times

Monday - Friday, 9am - 5.30pm

Fees

Applicable fees

Tenure:

Leasehold 250 years from 2022

A monthly management fee (MMF) and deferred management charge (DMC) apply to the sale of all properties at Mayfield Villages. 

We understand that everyone's financial situation and preferences are different. That's why we offer two choices of how much you pay and when.

Monthly Management Fee (MMF or MMC):

Option A: £691.33
Option B: £345.67
Options A-B correspond to Options A-B for the Deferred Management Charge.
Following exchange of contracts the option selected will be set until the lease is reassigned and cannot be changed.

Deferred Management Charge (DMC):

Option A: 5% per year or part-year for years 1-6, up to a maximum of 30%
Option B: 6.25% per year or part-year for years 1-6. From year 7, 1.25% per annum
Options A-B correspond to Options A-B for the Monthly Management Fee. 
Deferred Management Charge percentage will stop increasing after nine months of the property being marketed. This requires repares to be completed and personal belongings to be cleared, works to improve the saleability to have been undertaken and the price to be agreed (please see the lease for details).

PLEASE NOTE: The extent of the property and its boundaries are subject to verification by inspection of the title deeds. All properties are covered by a Premier guarantee for 10 years from new. Flexible Mayfield Villages Care packages are available at an additional cost.

Download Key Facts Document

Download Fees Document